Italiano
English
631.200 €

Circonvallazione Gianicolense

Magazzino in vendita • Roma - Circonvallazione Gianicolense, 44
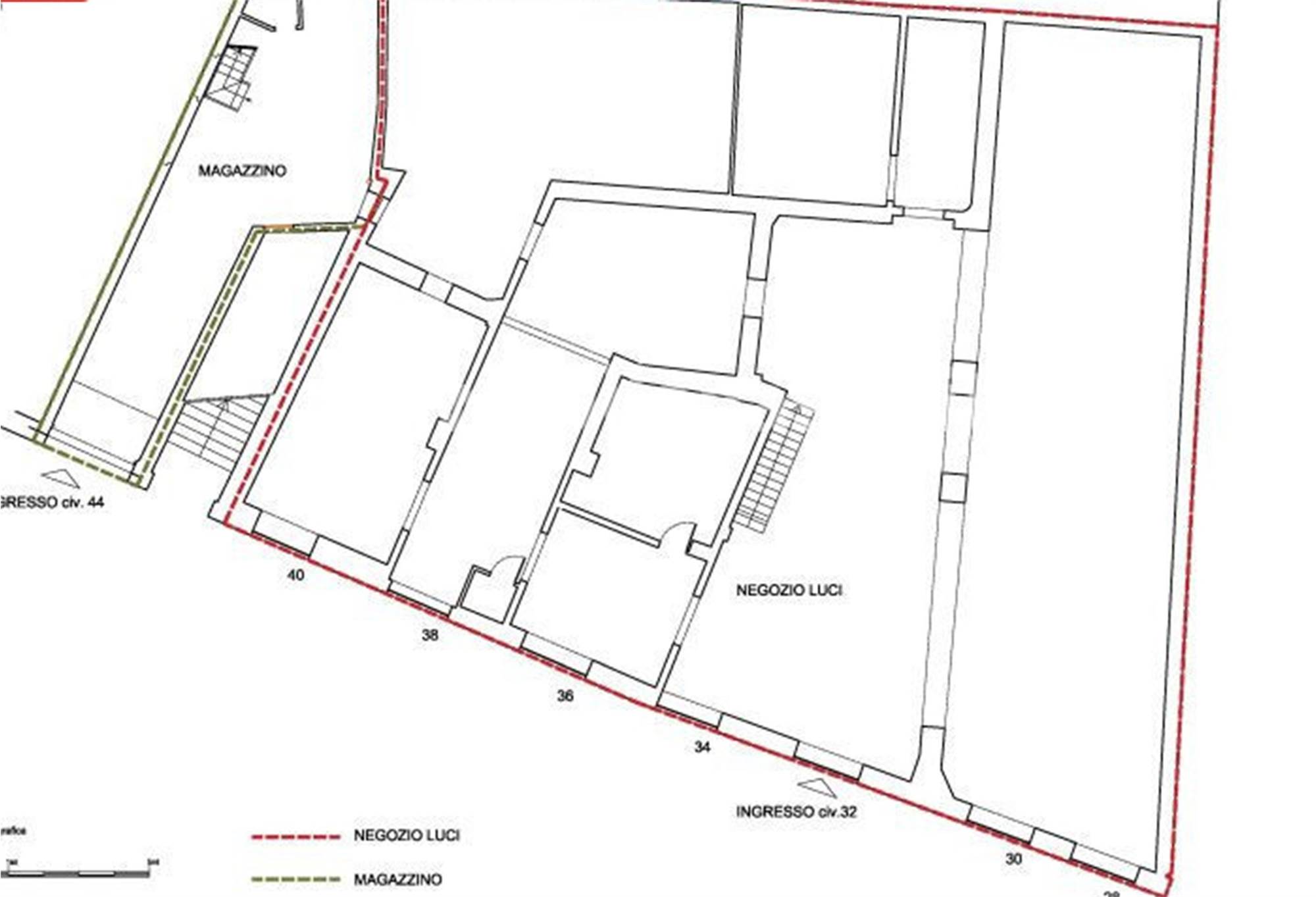
quota pari a 1/1 del diritto di piena proprietà sui seguenti due immobili attigui siti in roma: 1) unità immobiliare con destinazione d'uso c/4 in circonvallazione gianicolense nn. 28/40, piano t-s1, di complessivi mq 551,66 + 2) unità immobiliare con destinazione d'uso c/6 in circonvallazione gianicolense n.44, piano t, di complessivi mq 63,10


DATA ASTA 23/02/2026



IL GRUPPO FISM, settore Aste Giudiziarie, offre:

CONSULENZA LEGALE COMPLETAMENTE GRATUITA: Grazie ad un primo incontro avrai la possibilità di usufruire di una consulenza legale, con il nostro Avvocato in sede, la quale ti illustrerà la procedura delle esecuzioni immobiliari assistendoti in ogni fase del processo fino all'immissione in possesso e consegna della chiavi.

CONSULENZA URBANISTICA: Avrai modo di poter verificare, tramite tecnici abilitati, lo stato urbanistico e catastale dell'immobile di tuo interesse.

CONSULENZA BANCARIA: Avrai modo di poter verificare la fattibilità del mutuo con la collaborazione di CheBanca, Gruppo Mediobanca, con possibilità di acquisto fino al 100% di finanziamento.

NESSUNA PAGAMENTO sarà dovuto in caso di mancato acquisto o mancata aggiudicazione dell'immobile scelto.

Puoi contattare il nostro studio allo 06.93.89.69.19

Caratteristiche principali
Codice
784/2021 U- 23/02/2026-RM
Città
Roma
Categoria
Magazzino
Prezzo
631.200 €
Spese condominiali
1 € / anno
Locali
1
Bagni
1
Mq
63
Piano
Terra
Classe energetica
F
Stato Immobile
Buono
Grado
Medio
Lati Liberi
4
Arredi
Non Arredato
Riscaldamento
Autonomo
Tipo Riscaldam.
Caldaia
Tipo Impianto
Radiatori
Fonte Energetica
Gas
Acqua Calda
Autonoma
Infissi
PVC
Serramenti
Buono

Accessori: Antifurto, Aria Condizionata, Ascensore, Cassaforte, Cancello Elettrico, Fibra Ottica, Impianto Satellitare, Rete Dati, Video Citofono, Video Sorveglianza

Mappa
Circonvallazione Gianicolense 44, Roma (RM)
Richiedi informazioni
Invia
Condividi su
Cookie preference