Vicolo del casale lumbroso
Villetta schiera in vendita • Roma - Vicolo del casale lumbroso , 12
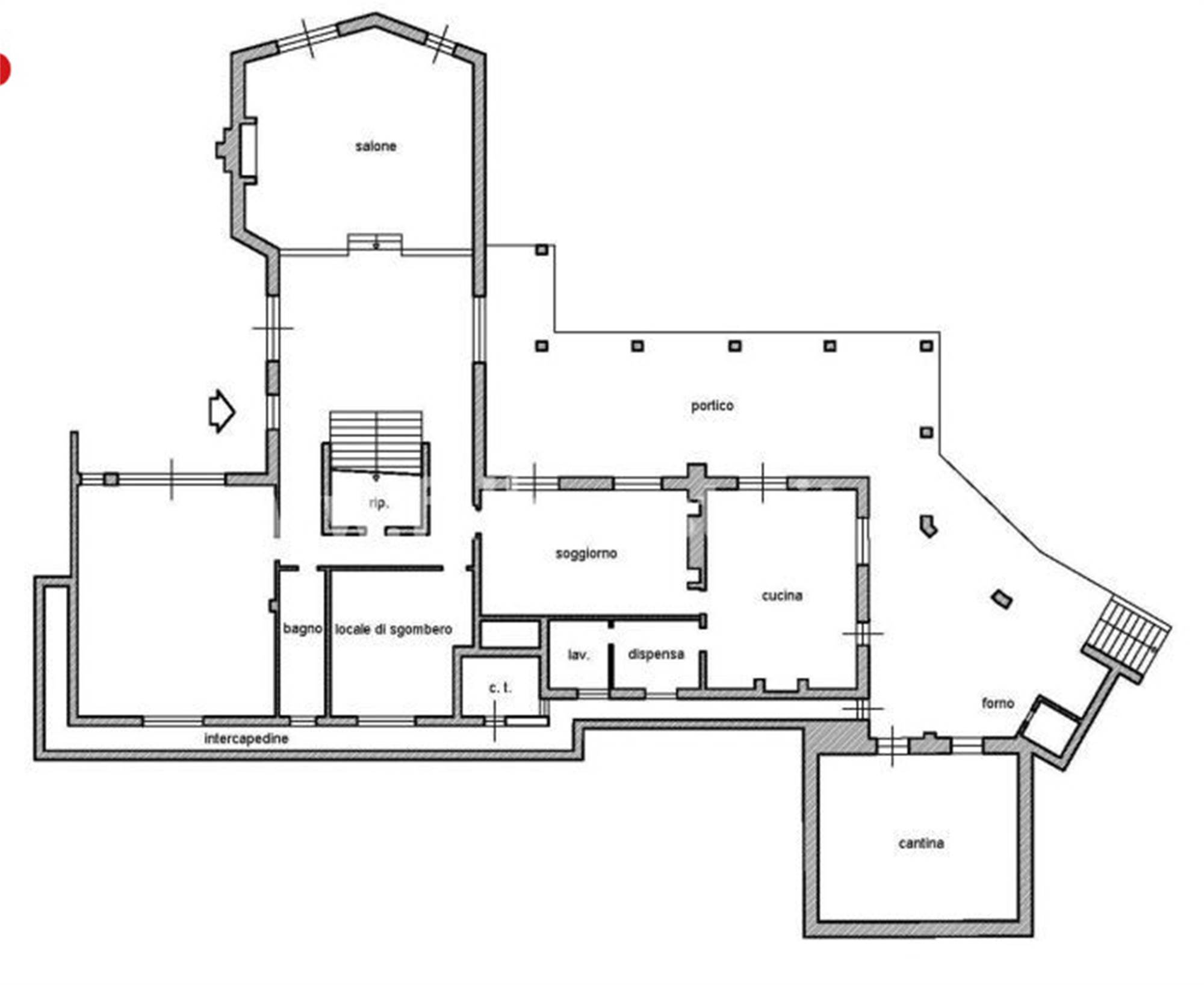
Quota pari a 1/1 del diritto di intera proprietà su villa unifamiliare con area esterna di pertinenza sita in Roma – Vicolo del Casale Lumbroso n. 12. La villa si sviluppa su due livelli, catastalmente piani terra e primo, ma in ragione dell’andamento in pendenza dell’area di sedime una parte del piano terra risulta interrata ed una parte del piano primo risulta di poco rialzata rispetto alla quota del terreno. La villa è composta: al piano inferiore da ingresso, salone con ampio camino, soggiorno/pranzo con camino, cucina abitabile con camino, locale dispensa, lavatoio, locale di sgombero, bagno, disimpegno, sottoscala adibito a ripostiglio, cavedio, centrale termica, intercapedine e cantina; all’esterno da un porticato al cui interno è stata ricavata una zona forno e dal quale si accede alla suddetta cantina; al piano superiore, al quale si accede sia dall’ampia scala interna che si diparte dal salone sia dalla parte più elevata dell’area esterna, da ingresso disimpegni, soggiorno/studio, quattro camere, tre bagni, cabina armadio e ripostiglio, il tutto per complessivi mq. 615,68
DATA ASTA 06/05/2026
IL GRUPPO FISM, settore Aste Giudiziarie, offre:
CONSULENZA LEGALE COMPLETAMENTE GRATUITA: Grazie ad un primo incontro avrai la possibilità di usufruire di una consulenza legale, con il nostro Avvocato in sede, la quale ti illustrerà la procedura delle esecuzioni immobiliari assistendoti in ogni fase del processo fino all'immissione in possesso e consegna della chiavi.
CONSULENZA URBANISTICA: Avrai modo di poter verificare, tramite tecnici abilitati, lo stato urbanistico e catastale dell'immobile di tuo interesse.
CONSULENZA BANCARIA: Avrai modo di poter verificare la fattibilità del mutuo con la collaborazione di CheBanca, Gruppo Mediobanca, con possibilità di acquisto fino al 100% di finanziamento.
NESSUNA PAGAMENTO sarà dovuto in caso di mancato acquisto o mancata aggiudicazione dell'immobile scelto.
Puoi contattare il nostro studio allo 06.93.89.69.19
Caratteristiche principali
Codice
760/2019 U -06/05/2026-RM
Categoria
Villetta schiera
Spese condominiali
1 € / anno
Accessori: Antifurto, Aria Condizionata, Ascensore, Cassaforte, Cancello Elettrico, Fibra Ottica, Impianto Satellitare, Rete Dati, Video Citofono, Video Sorveglianza
Mappa
Vicolo del casale lumbroso 12, Roma (RM)