Italiano
English
127.500 €

Via giulio minervini

Villetta schiera in vendita • Roma - Via giulio minervini, 173
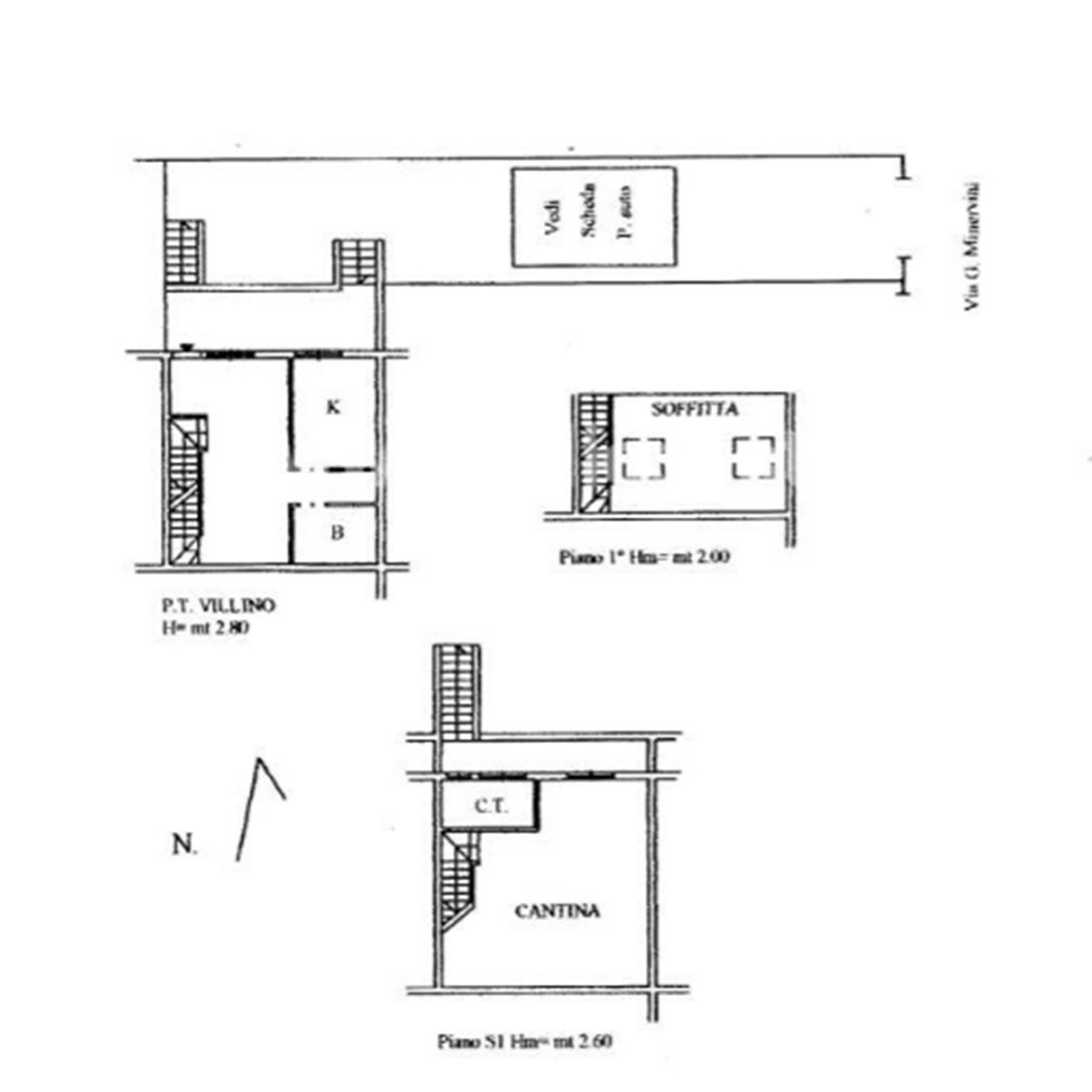
Intera proprietà di una porzione di villino quadrifamiliare sita in Roma, zona Ostia Antica, Via Giulio Minervini n. 173 (catastalmente “SC”), piano T, S1 e 1, con annessi giardino pavimentato e posto auto scoperto interno alla zona giardino, al piano terra composta da ampio locale destinato a soggiorno/pranzo e zona cucina, un bagno, giardino pavimentato; al piano seminterrato composta da una camera, una cameretta, un bagno, disimpegno, zona intercapedine; al primo piano mansardato composta da una camera ed un bagno, superficie lorda dell’appartamento


DATA ASTA 10/03/2026

IL GRUPPO FISM, settore Aste Giudiziarie, offre:

CONSULENZA LEGALE COMPLETAMENTE GRATUITA: Grazie ad un primo incontro avrai la possibilità di usufruire di una consulenza legale, con il nostro Avvocato in sede, la quale ti illustrerà la procedura delle esecuzioni immobiliari assistendoti in ogni fase del processo fino all'immissione in possesso e consegna della chiavi.

CONSULENZA URBANISTICA: Avrai modo di poter verificare, tramite tecnici abilitati, lo stato urbanistico e catastale dell'immobile di tuo interesse.

CONSULENZA BANCARIA: Avrai modo di poter verificare la fattibilità del mutuo con la collaborazione di CheBanca, Gruppo Mediobanca, con possibilità di acquisto fino al 100% di finanziamento.

NESSUNA PAGAMENTO sarà dovuto in caso di mancato acquisto o mancata aggiudicazione dell'immobile scelto.

Puoi contattare il nostro studio allo 06.93.89.69.19


Caratteristiche principali
Codice
544/2024 U-10/03/2026- RM
Città
Roma
Categoria
Villetta schiera
Prezzo
127.500 €
Spese condominiali
1 € / anno
Locali
2
Bagni
1
Mq
188
Piano
Terra
Classe energetica
F
Stato Immobile
Buono
Grado
Medio
Lati Liberi
4
Giardino
No
Arredi
Non Arredato
Tipo Soggiorno
Salone
Tipo Cucina
Abitabile
Riscaldamento
Autonomo
Tipo Riscaldam.
Caldaia
Tipo Impianto
Radiatori
Fonte Energetica
Gas
Acqua Calda
Autonoma
Infissi
PVC
Serramenti
Buono

Accessori: Antifurto, Aria Condizionata, Ascensore, Cassaforte, Cancello Elettrico, Fibra Ottica, Impianto Satellitare, Rete Dati, Video Citofono, Video Sorveglianza

Mappa
Via giulio minervini 173, Roma (RM)
Richiedi informazioni
Invia
Condividi su
Cookie preference