Italiano
English
179.498 €

Via di Villa Adriana

Garage in vendita • Tivoli - Via di Villa Adriana, 17
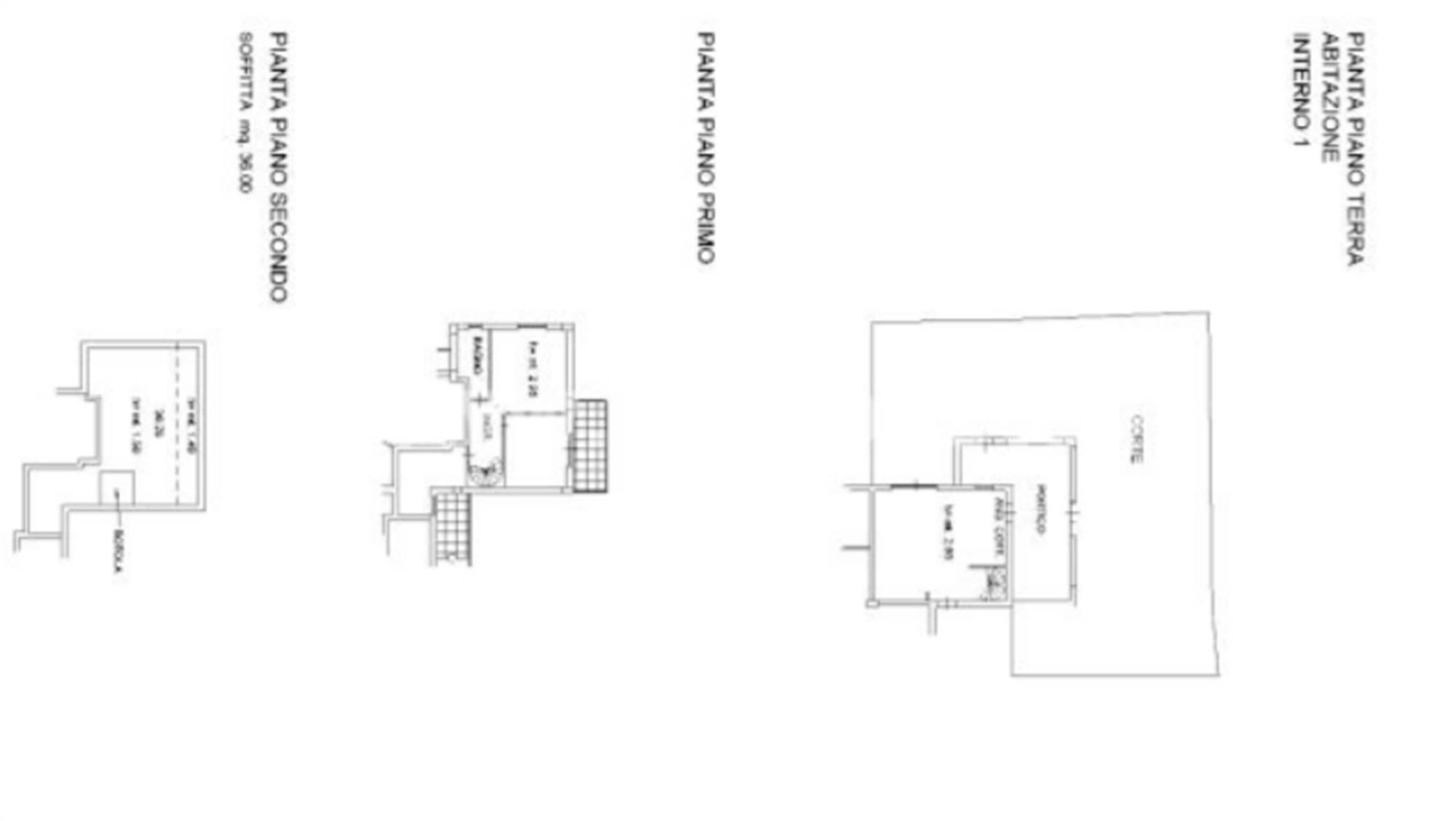
appartamento piano t-1-2 composto da cucina, soggiorno, due camere da letto, due bagni, balcone e soffitta, per complessivi mq. 257,38, con annessa corte esclusiva e area urbana + garage con entrata da via villa adriana civico 17


DATA ASTA 16/04/2026



IL GRUPPO FISM, settore Aste Giudiziarie, offre:

CONSULENZA LEGALE COMPLETAMENTE GRATUITA: Grazie ad un primo incontro avrai la possibilità di usufruire di una consulenza legale, con il nostro Avvocato in sede, la quale ti illustrerà la procedura delle esecuzioni immobiliari assistendoti in ogni fase del processo fino all'immissione in possesso e consegna della chiavi.

CONSULENZA URBANISTICA: Avrai modo di poter verificare, tramite tecnici abilitati, lo stato urbanistico e catastale dell'immobile di tuo interesse.

CONSULENZA BANCARIA: Avrai modo di poter verificare la fattibilità del mutuo con la collaborazione di CheBanca, Gruppo Mediobanca, con possibilità di acquisto fino al 100% di finanziamento.

NESSUNA PAGAMENTO sarà dovuto in caso di mancato acquisto o mancata aggiudicazione dell'immobile scelto.

Puoi contattare il nostro studio allo 06.93.89.69.19



Caratteristiche principali
Codice
308/2024 U -16/04/2026-RM
Città
Tivoli
Categoria
Garage
Prezzo
179.498 €
Spese condominiali
1 € / anno
Locali
2
Mq
33
Piano
Interrato
Classe energetica
F
Stato Immobile
Buono
Grado
Medio
Lati Liberi
4
Giardino
No
Arredi
Non Arredato
Tipo Soggiorno
Salone
Tipo Cucina
Abitabile
Riscaldamento
Autonomo
Tipo Riscaldam.
Caldaia
Tipo Impianto
Radiatori
Fonte Energetica
Gas
Acqua Calda
Autonoma
Infissi
PVC
Serramenti
Buono

Accessori: Antifurto, Aria Condizionata, Ascensore, Cassaforte, Cancello Elettrico, Fibra Ottica, Impianto Satellitare, Rete Dati, Video Citofono, Video Sorveglianza

Mappa
Via di Villa Adriana 17, Tivoli (RM)
Richiedi informazioni
Invia
Condividi su
Cookie preference