Italiano
English
131.250 €

APPARTAMENTO ROMA VIA CASATENOVO

Appartamento in vendita • Roma - Via Casatenovo, 32
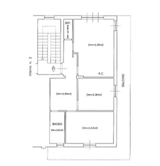
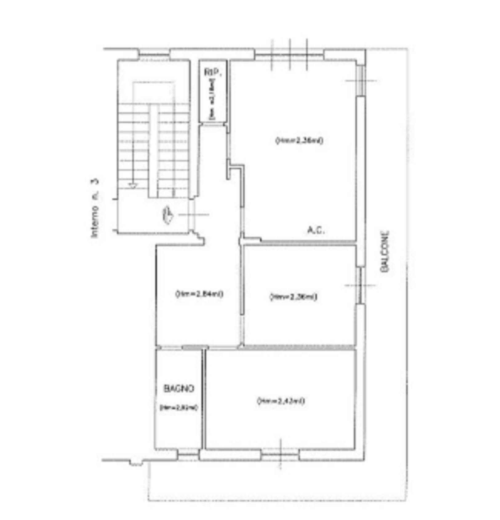
intera proprietà di immobile sito in roma, località “pietro pertusa”, via casatenovo n. 32, piano secondo, int. 4, destinazione di casa popolare, composto da ingresso, disimpegno, soggiorno con angolo cottura, due camere da letto, un bagno, un ripostiglio ed un balcone che delimita l’immobile su due lati.

DATA ASTA 24/11/2025

IL GRUPPO FISM, settore Aste Giudiziarie, offre:

CONSULENZA LEGALE COMPLETAMENTE GRATUITA: Grazie ad un primo incontro avrai la possibilità di usufruire di una consulenza legale, con il nostro Avvocato in sede, la quale ti illustrerà la procedura delle esecuzioni immobiliari assistendoti in ogni fase del processo fino all'immissione in possesso e consegna della chiavi.

CONSULENZA URBANISTICA: Avrai modo di poter verificare, tramite tecnici abilitati, lo stato urbanistico e catastale dell'immobile di tuo interesse.

CONSULENZA BANCARIA: Avrai modo di poter verificare la fattibilità del mutuo con la collaborazione di CheBanca, Gruppo Mediobanca, con possibilità di acquisto fino al 100% di finanziamento.

NESSUNA PAGAMENTO sarà dovuto in caso di mancato acquisto o mancata aggiudicazione dell'immobile scelto.

Puoi contattare il nostro studio allo 06.93.89.69.19

Caratteristiche principali
Codice
24/11/25-RM1051/24
Città
Roma
Categoria
Appartamento
Prezzo
131.250 €
Spese condominiali
1 € / anno
Locali
4
Bagni
1
Mq
85
Piano
1
Classe energetica
F
Stato Immobile
Buono
Grado
Medio
Lati Liberi
3
Giardino
No
Arredi
Non Arredato
Tipo Soggiorno
Salone
Tipo Cucina
Abitabile
Riscaldamento
Autonomo
Tipo Riscaldam.
Caldaia
Tipo Impianto
Radiatori
Fonte Energetica
Gas
Acqua Calda
Autonoma
Infissi
PVC
Serramenti
Buono

Accessori: Antifurto, Aria Condizionata, Ascensore, Cassaforte, Cancello Elettrico, Fibra Ottica, Impianto Satellitare, Porta Blindata, Rete Dati, Video Citofono, Video Sorveglianza

Mappa
Via Casatenovo 32, Roma (RM)
Richiedi informazioni
Invia
Condividi su
Cookie preference