Italiano
English
96.113 €

Via Santa Maria

Villetta schiera in vendita • Monte Compatri - Via Santa Maria, snc
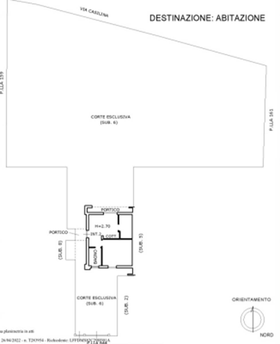
piena proprietà dei seguenti immobili nel comune di monte compatri (rm), via santa maria snc, palazzina“b”, e precisamente: a) appartamento con corte esterna di pertinenza al piano terra; b) posto auto esterno al piano piano terra.

DATA ASTA 04/12/2025


IL GRUPPO FISM, settore Aste Giudiziarie, offre:

CONSULENZA LEGALE COMPLETAMENTE GRATUITA: Grazie ad un primo incontro avrai la possibilità di usufruire di una consulenza legale, con il nostro Avvocato in sede, la quale ti illustrerà la procedura delle esecuzioni immobiliari assistendoti in ogni fase del processo fino all'immissione in possesso e consegna della chiavi.

CONSULENZA URBANISTICA: Avrai modo di poter verificare, tramite tecnici abilitati, lo stato urbanistico e catastale dell'immobile di tuo interesse.

CONSULENZA BANCARIA: Avrai modo di poter verificare la fattibilità del mutuo con la collaborazione di CheBanca, Gruppo Mediobanca, con possibilità di acquisto fino al 100% di finanziamento.

NESSUNA PAGAMENTO sarà dovuto in caso di mancato acquisto o mancata aggiudicazione dell'immobile scelto.

Caratteristiche principali
Codice
14/2022 U -04/12/2025-RM
Città
Monte Compatri
Categoria
Villetta schiera
Prezzo
96.113 €
Spese condominiali
1 € / anno
Locali
3,5
Mq
47
Piano
Terra
Classe energetica
F
Stato Immobile
Buono
Grado
Medio
Lati Liberi
4
Giardino
No
Arredi
Non Arredato
Tipo Soggiorno
Salone
Tipo Cucina
Abitabile
Riscaldamento
Autonomo
Tipo Riscaldam.
Caldaia
Tipo Impianto
Radiatori
Fonte Energetica
Gas
Acqua Calda
Autonoma
Infissi
PVC
Serramenti
Buono

Accessori: Antifurto, Aria Condizionata, Ascensore, Cassaforte, Cancello Elettrico, Fibra Ottica, Impianto Satellitare, Rete Dati, Video Citofono, Video Sorveglianza

Mappa
Via Santa Maria snc, Monte Compatri (RM)
Richiedi informazioni
Invia
Condividi su
Cookie preference