Italiano
English
250.500 €

Via anton giulio bragaglia

Ufficio in vendita • Roma - Via anton giulio bragaglia , 78
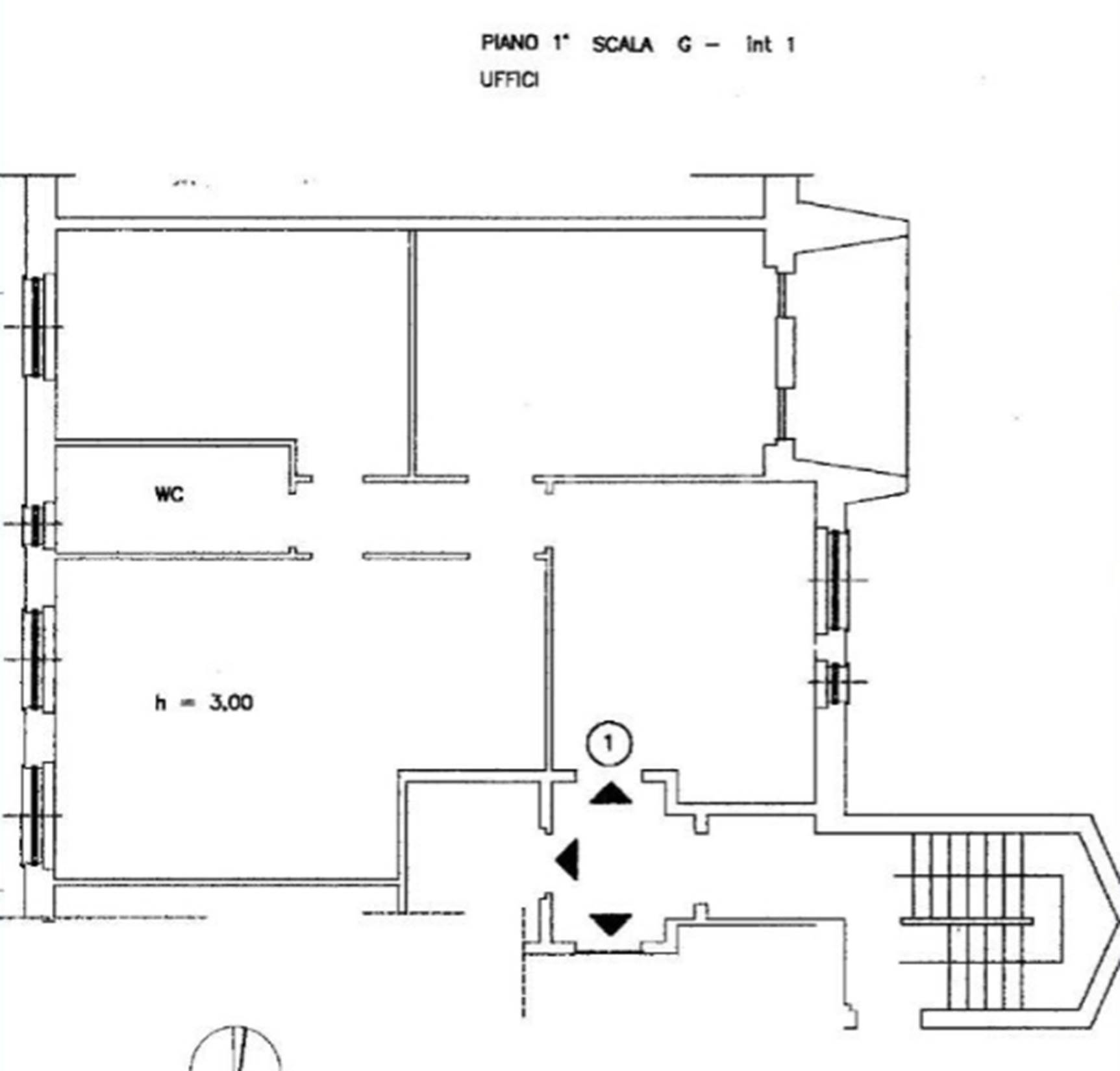
Quota pari a 1/1 del diritto di intera proprietà su appartamento uso ufficio sito in Roma via Anton Giulio Bragaglia n. 78, scala G, interno 1, piano 1, composto da ingresso/reception, tre vani principali, un servizio igienico, per una superficie convenzionale di complessivi mq. 147,00.


DATA ASTA 07/05/2026


IL GRUPPO FISM, settore Aste Giudiziarie, offre:

CONSULENZA LEGALE COMPLETAMENTE GRATUITA: Grazie ad un primo incontro avrai la possibilità di usufruire di una consulenza legale, con il nostro Avvocato in sede, la quale ti illustrerà la procedura delle esecuzioni immobiliari assistendoti in ogni fase del processo fino all'immissione in possesso e consegna della chiavi.

CONSULENZA URBANISTICA: Avrai modo di poter verificare, tramite tecnici abilitati, lo stato urbanistico e catastale dell'immobile di tuo interesse.

CONSULENZA BANCARIA: Avrai modo di poter verificare la fattibilità del mutuo con la collaborazione di CheBanca, Gruppo Mediobanca, con possibilità di acquisto fino al 100% di finanziamento.

NESSUNA PAGAMENTO sarà dovuto in caso di mancato acquisto o mancata aggiudicazione dell'immobile scelto.

Puoi contattare il nostro studio allo 06.93.89.69.19

Caratteristiche principali
Codice
1247/2024 U- 07/05/2026-RM
Città
Roma
Categoria
Ufficio
Prezzo
250.500 €
Spese condominiali
1 € / anno
Locali
3
Mq
147
Piano
1
Classe energetica
F
Stato Immobile
Buono
Grado
Medio
Lati Liberi
4
Arredi
Non Arredato
Riscaldamento
Autonomo
Tipo Riscaldam.
Caldaia
Tipo Impianto
Radiatori
Fonte Energetica
Gas
Acqua Calda
Autonoma
Infissi
PVC
Serramenti
Buono

Accessori: Antifurto, Aria Condizionata, Ascensore, Cassaforte, Cancello Elettrico, Fibra Ottica, Impianto Satellitare, Rete Dati, Video Citofono, Video Sorveglianza

Mappa
Via anton giulio bragaglia 78, Roma (RM)
Richiedi informazioni
Invia
Condividi su
Cookie preference